Sie sind hier:
Startseite
»
Opus
»
1000_1999
SITEMAP
IMPRESSUM
HAFTUNG
DATENSCHUTZ
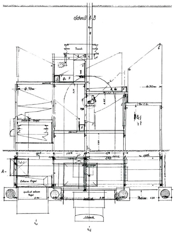
1945 Freiburg Praetoriusorgel
Startseite
Smart Walcker
Aktuelles
Verkäufe
Blogs
Walcker.com Blog
AeolineBlog
EFW Blog
Orgelbuch Blog
Historie
Johann Eberhard Walcker
Eberhard Friedrich Walcker
die Söhne
Oscar Walcker
Werner Walcker-Mayer
die Söhne
Music & Video
Orgel-CD's
MP3
Opus
0001_0999
1000_1999
2000_2999
3000_3999
4000_4999
ab_5000
Liste aller Orgeln
Magazin
Archiv
Reisen
prints
Hausmitteilungen
Firmenprospekte
Aeoline
Spieltische
Espan English Franc
English
Espanol
Francaise
Italien
Kirchen in Rom
Ferdinand Klinda "italiensche Orgel"
Bilder italienischer Orgeln
Fernando Germani
Bilder Rom
1835 Petersburg, Marijnskij-Theater
1505 Schorndorf
letzter Eintrag
Donnerstag, 30. April 2026
Auswahl Opus Bilder